




Description
16th Floor Living with Stunning Views in the Heart of Belconnen
Unit - BELCONNEN ACT
Positioned on the 16th floor within the sought-after Republic precinct, this modern one-bedroom apartment enjoys elevated views and offers an outstanding opportunity for buyers seeking lifestyle, convenience and low-maintenance living in one of Canberra’s fastest-growing urban centres.
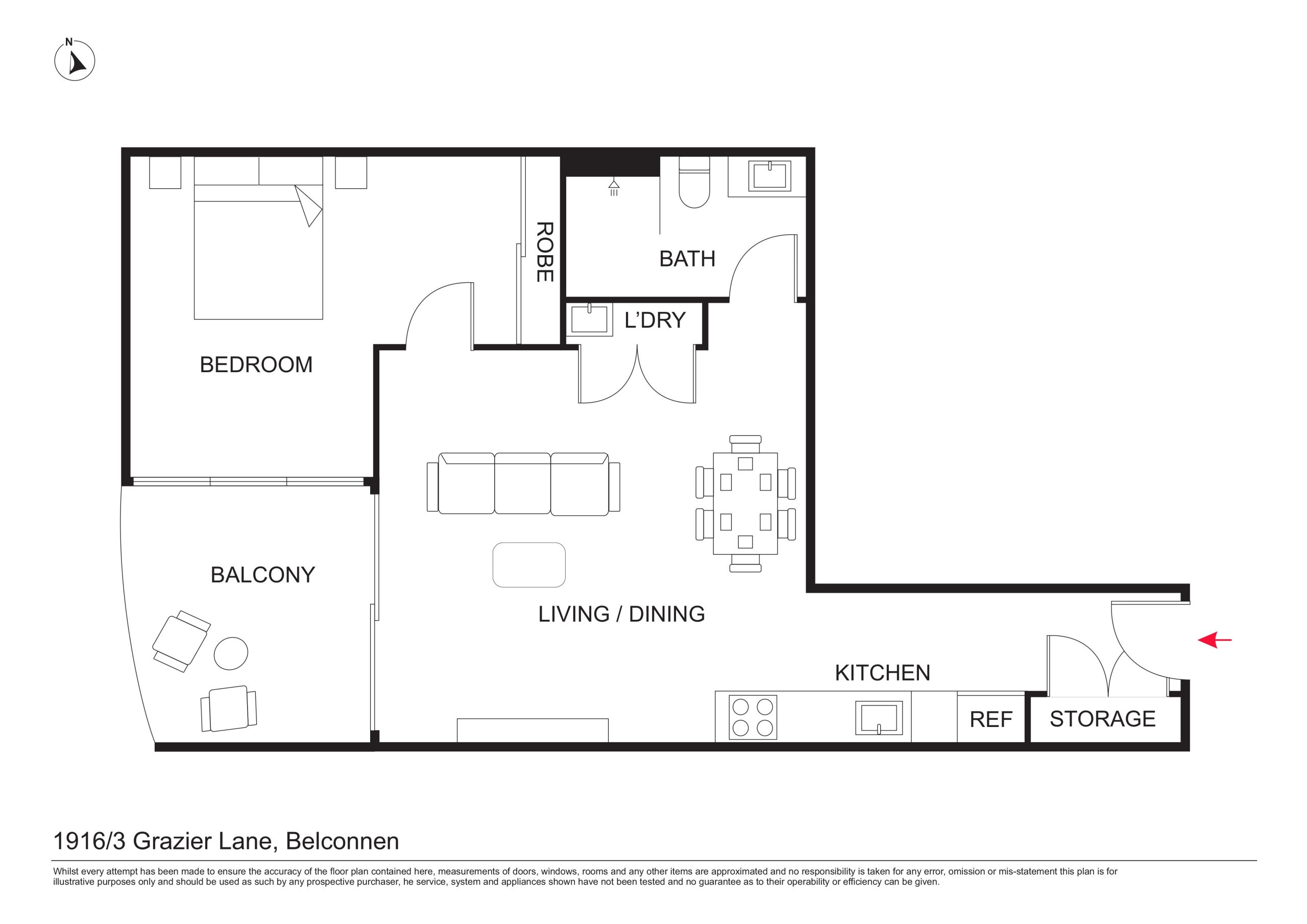
The light-filled open plan living and dining area flows seamlessly to a private balcony, creating the perfect space to relax while enjoying the outlook. The stylish kitchen features stone benchtops, quality appliances and excellent storage.
The bedroom includes a built-in wardrobe with easy access to the modern bathroom, while reverse-cycle air conditioning ensures year-round comfort. Secure basement parking adds everyday practicality.
Residents enjoy access to premium amenities including a gym, sauna, spa and cinema, all within the vibrant Republic precinct. With Westfield Belconnen, Lake Ginninderra, cafés, restaurants and public transport just moments away, this apartment offers the perfect blend of comfort, convenience and lifestyle.
Features:
• One bedrooms with built-in robes
• Stylish kitchen with stone benchtops, induction cooktop & quality appliances
• Open-plan living & dining with study nook
• Floor-to-ceiling double-glazed windows with views
• European laundry with dryer
• Reverse-cycle air conditioning in living and master bedroom
• Secure basement carpark and storage unit
• Resort-style resident amenities: infinity pool, spa, sauna, gym, yoga studio, cinema, chef’s kitchen, co-working spaces, Sky Garden & BBQs
• Steps from Republic precinct shops, dining & bars; walk to Lake Ginninderra & Westfield Belconnen
Particulars (all approx)
EER: 6.0
Living Area: 54m²
Balcony: 8m²
Built: 2020
Rates: $425.00 per quarter
Land Tax: $466.61 per quarter (only applicable if not primary residence)
Strata: $744.25 per quarter
Current lease until 05/05/26 at $505.00 per week
PLEASE NOTE, VIRTUAL FURNITURE IS APPLIED TO PHOTOS TO HELP DISPLAY HOW TO ORGANISE THE ROOMS
DISCLAIMER
We have obtained all information provided here from sources we believe to be reliable; however, we cannot guarantee its accuracy. Prospective purchasers are advised to carry out their own investigations and satisfy themselves of all aspects of such information including without limitation, any income, rentals, dimensions, areas, zoning and permits. Any figures and information contained in this advertisement are approximate and a guide only and should not be relied upon for financial purposes or taken as advice of any nature. Individuals, Self-Managed Super Funds, companies, anyone or entity, should make their own inquires and seek their own advice and rely only upon those inquiries and advice.
Archer does not guarantee the accuracy of the information above and are not financial advisers or accountants and do not provide any of the above information as advice of any nature.
Property Features
- Unit
- 1 bed
- 1 bath
- 1 Parking Spaces
- Floor Area is 62 m²
- Energy Rating 6.0
- Garage
- About
- Bio
- Recent Listings





















































