




Description
SOLD by Alex Wang - Canberra No.1 Agent Award winner. Think of selling? Please call Alex 0402169387 for a market update!
Apartment Sold - GUNGAHLIN ACT
SOLD by Alex Wang – Canberra No.1 Agent Award winner. Think of selling? Please call Alex 0402169387 for a market update!
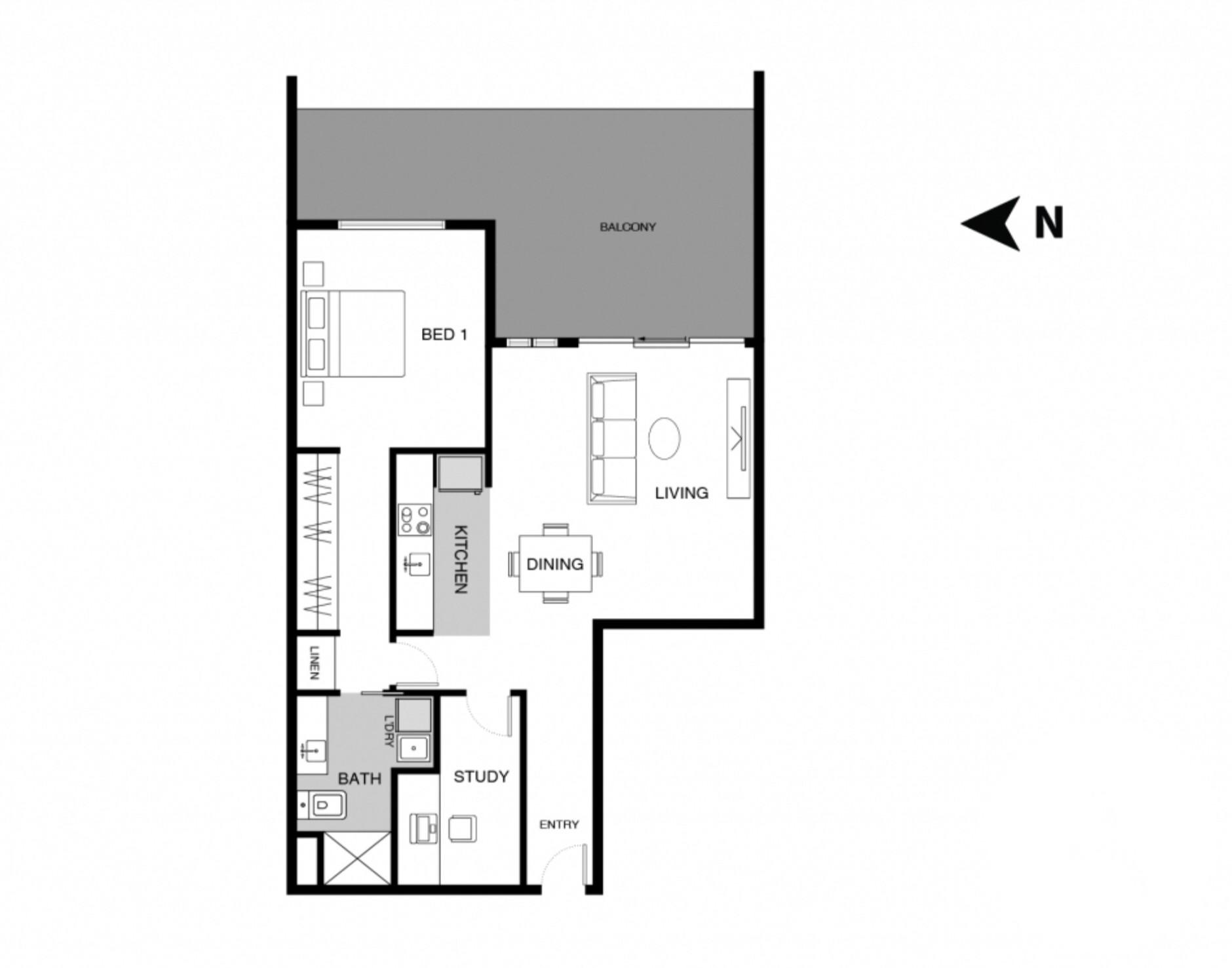
89 m2 Oversized 1 bedroom + Study living at its finest – Ready for Move In!
Embrace the ultimate in urban living at the Uptown complex, perfectly located in the vibrant centre of Gungahlin. With the light rail station just steps away, commuting to the city is effortless, and everyday convenience is at your fingertips with nearby shopping centres, medical facilities, schools, cafés, restaurants, and major supermarkets including Woolworths, Coles and Aldi.
Perched on the third floor, this east-facing apartment captures the morning light and offers an expansive open-plan design that flows effortlessly from the living and dining space to a generously sized balcony-ideal for relaxing or entertaining against a backdrop of sweeping district views. The bedroom is thoughtfully designed with a spacious footprint and a wall of built-in wardrobes, while the additional study provides a quiet zone for working from home or accommodating guests with ease.
The kitchen is both stylish and practical, boasting high-end appliances, sleek finishes, and ample pantry storage. The oversized bathroom continues the theme of comfort and quality.
Whether you’re a first home buyer, savvy investor, or downsizer seeking the perfect blend of location and low-maintenance lifestyle, this is an opportunity not to be missed.Contact us today for more information and to schedule a viewing.
Features:
• East-facing on Level 3
• Spacious balcony
• Open plan living and dining area
• Study room
• Stainless Steel Appliance with double dish drawer dishwasher
• Stone benchtops
• R/C Air condition
• Large built-in robe in bedrooms
• Full height tiles in bathrooms
• NBN ready
• Underground secure carpark spots and storage
• In the heart of Gungalin, close to Gungahlin Market Place, light-rail station and supermarkets such as Woolworths, Coles, and Aldi
Particulars (all approx.)
Living Size: 66 m2 + 23 m2 balcony
Year Built: 2018
Strata: $720/quarter
Rates: $432/quarter
EER: 6.0
DISCLAIMER
We have obtained all information provided here from sources we believe to be reliable; however, we cannot guarantee its accuracy. Prospective purchasers are advised to carry out their own investigations and satisfy themselves of all aspects of such information including without limitation, any income, rentals, dimensions, areas, zoning and permits. Any figures and information contained in this advertisement are approximate and a guide only and should not be relied upon for financial purposes or taken as advice of any nature. Individuals, Self-Managed Super Funds, companies, anyone or entity, should make their own inquires and seek their own advice and rely only upon those inquiries and advice.
Archer does not guarantee the accuracy of the information above and are not financial advisers or accountants and do not provide any of the above information as advice of any nature.
Property Features
- Apartment
- 1 bed
- 1 bath
- 1 Parking Spaces
- Floor Area is 89 m²
- Energy Rating 6.0
- Garage
- About
- Bio
- Reviews
- Recent Listings
- About
- Bio
- Reviews
- Recent Listings


































